Espace propriétaire
fr

Votre recherche

Saint-Étienne (42000)

3 pièces - 97,68 m²

Secteur Bellevue/Jomayere, plateau loft en dernier étage avec terrasse en loggia

99 000 €
Ref : 444
Découvrir le bien

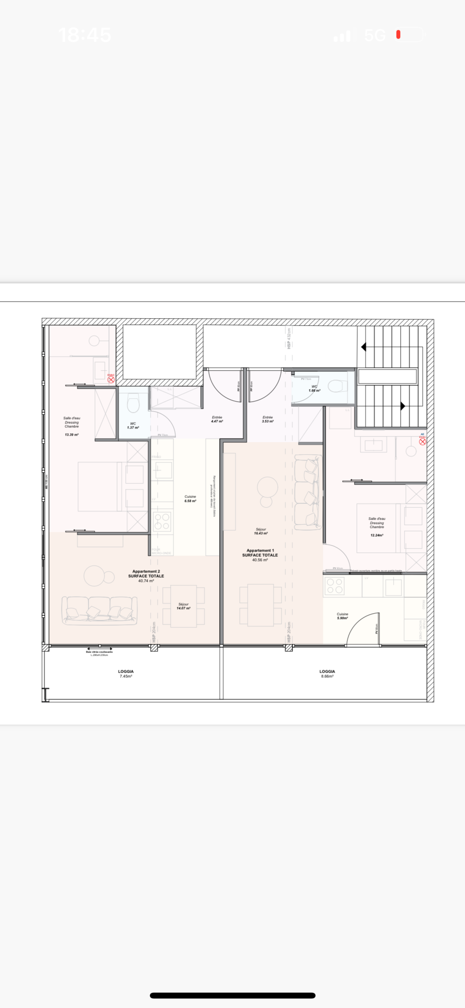
Découvrez ce magnifique plateau type loft de 97,68 m2, situé au dernier étage d'un immeuble bien entretenu, offrant une terrasse de 17 m2 avec vue imprenable.

Ce bien rare présente une belle hauteur sous plafond, permettant la création d'une mezzanine pour augmenter la surface habitable et exploiter pleinement le volume.

Vous trouverez également en photo une proposition d'aménagement permettant de créer deux T2 pour optimiser la rentabilité locative.

2 places de parking sont disponibles en supplément.

Transports en commun (tram et bus) au pied de l'immeuble : un emplacement idéal pour une vie pratique et pour un investissement locatif attractif.

Un bien à fort potentiel, parfait pour un projet de résidence comme un investissement.

Charges : 90Euros/mois.

Prix : 99.000 €

TRAD_ZEPHYR_Caracteristique TRAD_ZEPHYR_Valeurs
Code postal 42000
Surface loi Carrez (m²) 97,68 m²
Nombre de chambre(s) 2
Nombre de pièces 3
Etage 3
TRAD_ZEPHYR_Caracteristique TRAD_ZEPHYR_Valeurs
Mode de chauffage Autre
Type de chauffage Autre
Format de chauffage Individuel
Terrasse OUI
TRAD_ZEPHYR_Caracteristique TRAD_ZEPHYR_Valeurs
Copropriété NON
Quote Part annuelle des charges 1 080 €
plan de sauvegarde NON
TRAD_ZEPHYR_Caracteristique TRAD_ZEPHYR_Valeurs
Prix de vente 99 000 €
Les honoraires d'agence seront intégralement à la charge du vendeur  
DPE GES
  • Commerces et santé
  • Loisirs
  • Ecoles
  • Transports
  • Pratique
Contacter pour ce bien
L'agence
Téléphone 04 77 83 08 00
Adresse
3 rue traversiere 42000 Saint-Étienne

* Champ obligatoire

Les informations recueillies sur ce formulaire sont enregistrées dans un fichier informatisé par La Boite Immo agissant comme Sous-traitant du traitement pour la gestion de la clientèle/prospects de l'Agence / du Réseau qui reste Responsable du Traitement de vos Données personnelles. La base légale du traitement repose sur l'intérêt légitime de l'Agence / du Réseau. Elles sont conservées jusqu'à demande de suppression et sont destinées à l'Agence / au Réseau. Conformément à la loi « informatique et libertés », vous disposez des droits d’accès, de rectification, d’effacement, d’opposition, de limitation et de portabilité de vos données. Vous pouvez retirer votre consentement à tout moment en contactant directement l’Agence / Le Réseau. Consultez le site https://cnil.fr/fr pour plus d’informations sur vos droits. Si vous estimez, après avoir contacté l'Agence / le Réseau, que vos droits « Informatique et Libertés » ne sont pas respectés, vous pouvez adresser une réclamation à la CNIL. Nous vous informons de l’existence de la liste d'opposition au démarchage téléphonique « Bloctel », sur laquelle vous pouvez vous inscrire ici : https://www.bloctel.gouv.fr Dans le cadre de la protection des Données personnelles, nous vous invitons à ne pas inscrire de Données sensibles dans le champ de saisie libre.
Ce site est protégé par reCAPTCHA, les Politiques de Confidentialité et les Conditions d'Utilisation de Google s'appliquent.

Découvrir nos outils